
XCC/A型旋涡湿式水浴除尘器介绍
一、设备配置
XCC/A型号锥形漏斗排泥浆的旋涡式除尘机组,按处理风量的能力分规格,主要适用于处理钢厂热轧生产线产生的氧化铁皮和蒸汽的混合粉尘,处理后的废气粉尘浓度≤10mg/Nm3,达到国家排放标准。
二、 设备技术规格书
1、结构形式
旋涡湿式水浴除尘器,由箱体、不锈钢S 板、净气室、不锈钢挡水板、鲍尔环填料气水分离器、自动反冲洗分离器、水位控制装置、供水阀、自动排灰系统等组成(见图)
(1)S 板
S板是旋涡式除尘器的核心部件,由上叶片和下叶片组成,多由不锈钢制作; S板安装时必须水平,间距准确,连接密封。
(2)水位控制装置
水位控制装置是核心控制装置,由机电元件组合而成。
(3)挡水板
尘气经过旋涡通道时,由于气体突然转向,形成离心力,将粘附了细微粉尘的水雾经挡水板挡回灰斗。挡水板采用百叶式挡水板间距过密,防止尘泥堵塞
(4)鲍尔环填料气水分离器及自动反冲洗
为去除气体中的剩余尘粒和水,在除尘器出口处设置水气分离器,该分离器采用鲍尔环填料收水器,又能通过压差自动打开反冲洗反复利用。含有较小尘粒和水的气体经过尘水气分离器,尘粒和水被分离,气体达到排放标准,经风机排入大空。
(5)自动排灰系统
当水中的灰尘一定的浓度时,自动排灰系统开启,灰尘随水排出灰斗,排入钢厂污水处理系统。
(6)通风机
可直接座在除尘器箱体上,也可以分装在其他适宜部位;必须强调12号以上通风机 应与机体分装。

2、除尘原理
旋涡式湿式水浴除尘器利用高速气流在狭窄通道内呈 S 形轨迹运动的冲激力,强化粉尘在水洗作用下的湿润、凝并和沉降功能。
如图1所示,含尘气体由入口进入除尘器,气流转弯向向冲击水面,部分较大的尘粒落入水中。当含尘气体以16-28米/秒的速度通过上、下叶片间的“S”形通道时,激起大量的水花,使水气充分接触,绝大部分微细的尘粒混入水中,使含尘气体得以充分净化,经由“S”形通道后,由于离心力的作用,获得尘粒的水又返回漏斗。净化后的气体由分雾室挡水板除掉水滴后经气水分离器后干净气体由通风机排出
机组内的水位由溢流箱控制。当水位高出溢流箱的溢流堰时,水便流进水封并由溢 流管排出。设在溢流箱盖上的水位自动控制装置能保证水面在 3-10 毫米的范围内变动, 从而保证机组稳定的高效率和节约用水。
溢流箱上部用通气管与净气分雾室连通,使两者具有相同高度的水面。
溢流箱的水是通过插入除尘器下部的连通管连通的,以保持溢流箱水面平稳。
3、技术性能
(1)处理风量对设备阻力的影响
试验结构表明,设备阻力随处理风量的增加而提高
(2)处理风量对除尘效率的影响
除尘效率随处理风量的增加而提高。当单位叶片长度风量大于 7000m³/(h·m)时,效率提高很小,而阻力增加很大,因此单位叶片长度处理风量按 5000-7000m³/(h ·m) 设计。
(3)入口含尘浓度对除尘效率影响
除尘效率随入口含尘浓度的增大而提高,出口含尘浓度则变化不大。当入口含尘质量浓度在 100g/m³以下时,出口含尘质量浓度不大于 10mg/m³;1µm 粒度的粉尘,除尘效率在 98.5%以上,可见本除尘器机组用于含尘浓度高的气体有突出的优点。
(4)水位对除尘效率、设备阻力的影响
水位的高低对设备阻力及除尘效率都有直接影响。水位增高,阻力与效率随之提高,但水位过高时,效率提高不显著,而阻力提高较 大;水位过低时,虽阻力减小但效率有显著降低。多次试验显示,溢流堰高出上叶片下沿 50mm 为最佳。
(5)XCC/A 型旋涡式除尘器技术性能
型号 风量 m³/h 阻力 pa 效率% 尺寸(m) 耗水量 (kg/h) 工作重量( kg)
XCC/A-60 53800-72500 1000 98.5 6×2.5×6 15000 200000
4、安装说明
(1)安装前应检查机组的完好性。重新拧紧各连接螺栓。
(2)安装前应注意检查门开启方便,溢流箱及供水管路便于观察和操作。
(3)机组的安装一定要达到水平。
(4)排泥浆水管、溢流管不应直接连在下水管,应接到水槽或经漏斗再接到下水管上,以便随时观察机组的工作情况。
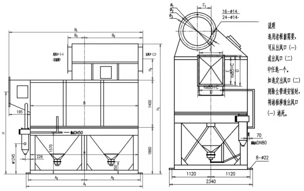
5、安装尺寸表

XCC/A-60 型除尘机组外形尺寸装配图(参见安装尺寸表)

6、使用说明
(2)机组用于定期间断排泥浆法的操作程序。
A.向箱体内充水:由箱体外部 6 分阀门外接胶管向箱体内充水。充至溢流管用水溢流时,水位达到视镜刻度线处为止。
B.关闭溢流箱的视孔盖及排泥浆阀。开启风机,同时开启溢流箱旁路 DN40 球阀。由于风机启动后,机组内的水面有较大幅度的变化,再慢慢打开进水阀并细心的调正溢流水量。保持溢流 水均匀不断的从溢流管流出。
C.停机时,停风机的同时关闭溢流箱上旁路 DN40 球阀。
D.定期放泥浆时,将排浆阀打开,将泥浆放走。如因淤泥使泥浆不易排出时,可用铁棍等物捅入松动,并将 4 分冲洗阀接入压力水冲洗。定期放泥浆的周期,要根据实践自行掌握。但要 注意勿使漏斗里的积灰高度淹没连通管的下口,否则会隔死溢流水,破坏机组的正常运行。
(3)机组用于连续排泥浆法的操作程序。
与定期排泥浆法的不同点,仅在于风机启动后,需反复的、交替的调正供水阀和排浆阀,使其 流量满足要求。
排泥浆阀的排水量,可根据灰尘浓度的大小,气体温度的高低等具体条件,在实践中进行调正。
7、机组的维护检修
(1)除尘系统工作时,需警察使机组的风量保持较稳的范围内。尽量减少风量的波动。
(2)经常注意视孔,观察孔及各检查门的严密性。
(3)根据机组的运转经验,定期的冲洗机组内部。
(4)如发现叶片由于磨损或腐蚀等原因有所损坏时,必须及时修理或更换。
(5)在通过含尘气体时,不允许在水位不足的条件下运行。更不允许无水运行。
(6)当发现溢流箱底部淤积堵塞时,可打开溢流箱下部的管帽,并由4分冲洗阀接入压力水配合清洗。
旋涡式湿式水浴除尘器案例分析
2020年9月28日,柳钢热轧厂1450毫米生产线精轧机组F6、F7轧机新增的漩涡除尘系统已完成调试,正式投入使用。该系统是柳钢首套采用新一代旋涡式水浴湿式除尘器,具有投资少、结构简单、维护和运行成本低的优点。
该厂热轧钢带在轧制生产工程中会产生飞拆的氧化铁屑,形成粉尘烟气,特别是精轧机组后段机架由于轧制速度高,烟尘含有蒸汽和大量超细铁氧化粉尘,又潮又细,呈弥漫性,不仅影响现场设备仪表运行,而且危害职工身体健康。为改善作业环境、减少设备隐患,该厂经过多次调研论证,决定在1450毫米生产线精轧机组F6、F7轧机出口新增涡旋除尘系统,由风机引风,在F6、F7轧机出口上方安装吸尘罩集中收集烟尘,经过管道进入漩涡式湿式水浴除尘器处理后,轧机烟尘的除尘污水排入轧线冲渣沟,进入工艺浊环水系统进行后续处理,而净化后的空气则从烟囱排出。
经检测净化处理后的气体颗粒物浓度低于8毫克/立方米,优于国家颁布的《轧钢工业大气污染物排放标准》(GB28665-2012)中的排放标准限值30毫克/立方米。1450毫米生产线新增除尘系统运行后,厂房内粉尘烟气大幅减少,为一线职工创造了良好的工作环境。







COPYRIGHT (©) 2019 苏ICP备14008075号-1